Villa Strada Provinciale 182, Malfa
Nella splendida cornice dell’isola di Salina, vendesi villa nobiliare dei primi del ‘900, sita in zona collinare e ristrutturata nel 2006. La villa è disposta su due livelli, con ampie terrazze e giardino con 3 ulivi secolari.
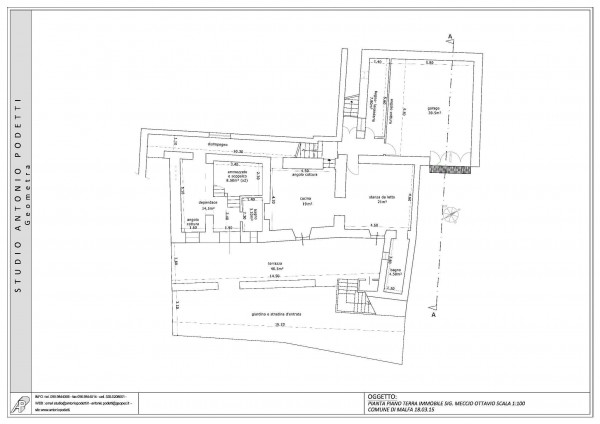
Al piano terra si trovano: cucina abitabile, camera da letto con bagno, lavanderia, tavernetta/garage e dependance con cucina e bagno indipendenti.
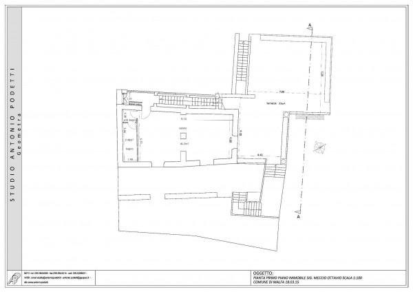
A primo piano si trova un salone con antico pavimento eoliano, caminetto e bagno con idromassaggio.
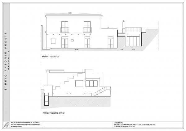
Tutta la villa è circondata da terrazze in classico stile eoliano.
La villa possiede impianto di riscaldamento a GPL con termosifoni, climatizzatori d’aria e due cisterne interrate per la raccolta dell’acqua piovana e di rete.
Posizione molto panoramica con vista sulle isole di Panarea e Stromboli.
Superficie 240 m², terreno di proprietà 200 m²


